Sprzedaż działek budowlanych
Zgodnie z miejscowym planem zagospodarowania przestrzennego „Zabudowa mieszkaniowa Futory” Burmistrz Miasta i Gminy Oleszyce informuje, że w pierwszym kwartale 2012 roku przedmiotem sprzedaży będą działki przeznaczone pod budownictwo mieszkaniowe jednorodzinne o powierzchni 0,12-0,16 ha położone w miejscowości Futory. Gmina Oleszyce opracowała dokumentację projektową i uzyskała pozwolenie na budowę sieci wodociągowej i kanalizację oraz drogi wewnętrzne. Działki budowlane zgodnie z ustawą o gospodarce nieruchomościami (Dz.U. 2010 nr 102 poz. 651 z póź. zm.) sprzedawane będą w przetargu nieograniczonym. Cena wywoławcza działek opracowana zostanie na podstawie wyceny przez uprawnionego rzeczoznawcę. Planowana jest sprzedaż 31 działek, Więcej informacji uzyskać można w Referacie Rolnictwa, Leśnictwa i Działalności Gospodarczej Urzędu Miasta i Gminy Oleszyce (pok. nr 13, tel. 16 6315 117).
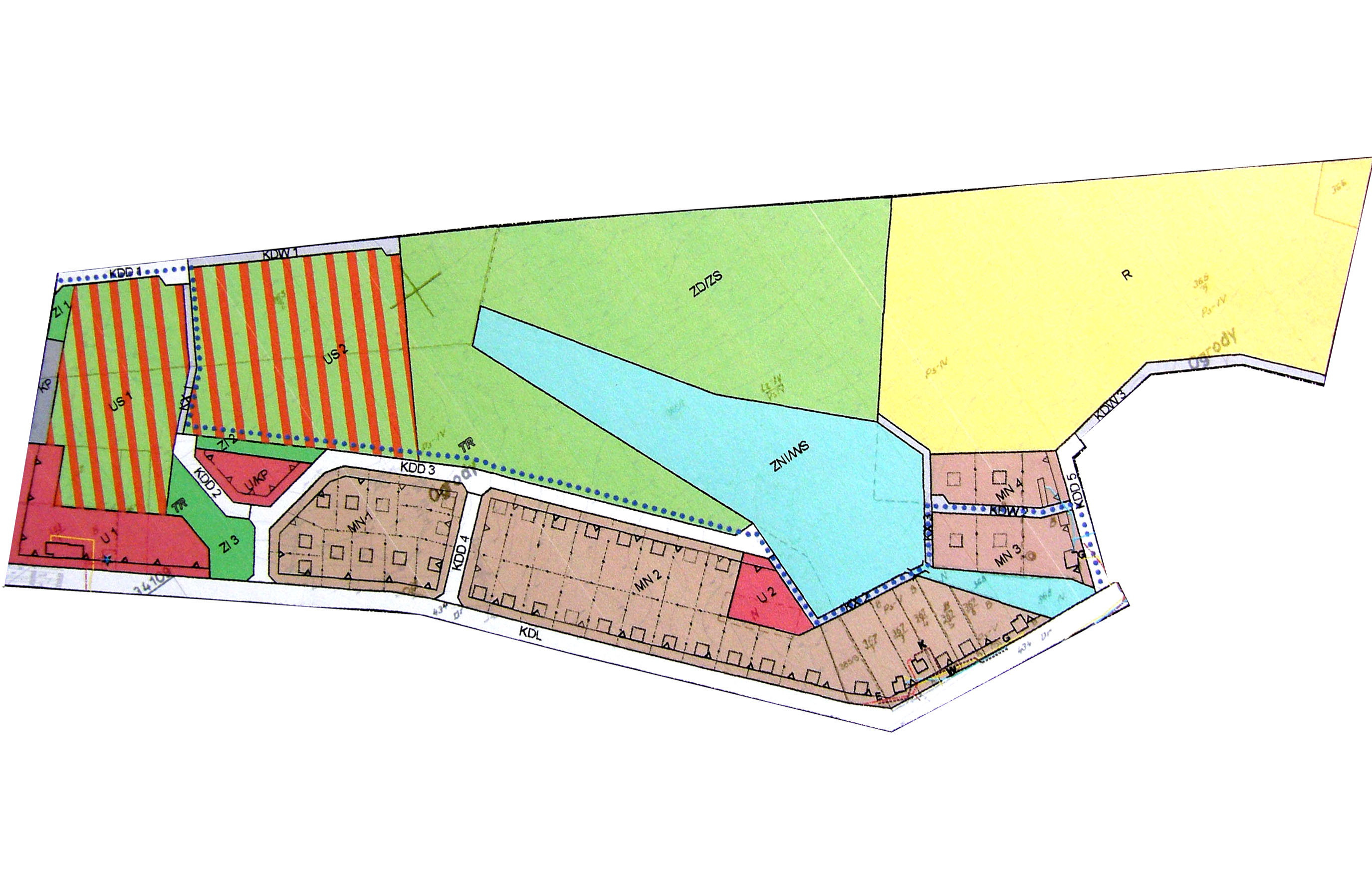
Poniżej zamieszczony został miejscowy plan zagospodarowania przestrzennego z lokalizacją w/w działek.


Wycinek planu z zaznaczonymi numerami działek

Wykaz powierzchni działek do sprzedaży w formie przetargowej
365/15 o pow. 0,1188 ha,
365/16 o pow. 0,1347 ha,
365/17 o pow. 0,1531 ha,
365/18 o pow. 0,1414 ha,
365/19 o pow. 0,1171 ha,
365/20 o pow. 0,1191 ha,
365/21 o pow. 0,1062 ha,
365/22 o pow. 0,1105 ha,
365/23 o pow. 0,1293 ha,
365/24 o pow. 0,1314 ha,
365/25 o pow. 0,1189 ha,
365/27 o pow. 0,1362 ha,
365/28 o pow. 0,1405 ha,
365/29 o pow. 0,1404 ha,
365/30 o pow. 0,1404 ha,
365/31 o pow. 0,1405 ha,
365/32 o pow. 0,1404 ha,
365/33 o pow. 0,1405 ha,
365/34 o pow. 0,1404 ha,
365/36 o pow. 0,1110 ha,
365/37 o pow. 0,1146 ha,
365/38 o pow. 0,1146 ha,
365/39 o pow. 0,1146 ha,
365/40 o pow. 0,1146 ha,
365/41 o pow. 0,1146 ha,
365/42 o pow. 0,1146 ha,
365/43 o pow. 0,1145 ha,
365/44 o pow. 0,1146 ha,
365/45 o pow. 0,1146 ha,
365/46 o pow. 0,1617 ha,
365/50 o pow. 0,1472 ha.
Utworzony:2011-12-13 12:27:03 Autor:
|